Our 20ft hunting container cabin is designed for off-the-grid living and outdoor retreats. Built with reinforced steel, spray foam insulation, and a fully code-compliant electrical and plumbing system, this cabin provides comfort, safety, and flexibility. Optional upgrades include rooftop decks, built-in bunk beds, camo paint, wood-burning stove prep, and freshwater systems for fully autonomous living.
20ft “One Tripper” shipping container with reinforced steel structure Durable exterior finish with Sherwin-Williams paint or custom camo Fully insulated: spray foam at walls/ceiling and insulated floor system Open-concept interior for sleeping, living, cooking, and relaxing Kitchenette with sink, countertop, floating cabinets, and space for mini-fridge & cooktop Luxury vinyl flooring and shiplap/pine interior walls 9,000 BTU 19 SEER ductless mini-split HVAC system Electrical outlets, external hookups, and LED ceiling lighting throughout Plumbing with PEX and PVC drains, propane tankless water heater Optional rooftop deck with composite decking, spiral staircase, and aluminum railing Fold-down butcher block table, custom built-in bunk beds, deer extension pole system Wood-burning stove ready with vent system and fresh air intake Steel security shutters on windows and lockable doors Off-grid freshwater system with tank, pump, battery, and expansion tank
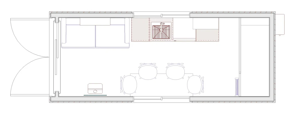
Open-plan interior with combined living, sleeping, and kitchenette areas Flexible furniture arrangement for couch, chairs, coffee table, and TV Optional built-in bunk beds or fold-down tables for space maximization Spiral staircase for rooftop deck access External water and electrical hookups for off-grid or on-grid connectivity Designed for hunting retreats, remote cabins, or tiny off-the-grid homes
Exterior: custom camo paint, partial exterior cladding Interior walls: white shiplap, pine, Amish pine, basswood, Amish blue pine Kitchen: countertops, cabinetry, appliances, and layout Sleeping: built-in bunk beds, fold-down tables Rooftop deck: size, composite material, railing, assembly option Heating: wood-burning stove-ready vent system Security: steel window shutters, lockable doors Water: off-grid freshwater systems (40–100 gallon options)
Container Type: 20ft “One Tripper” reinforced steel Exterior Doors: Vinyl sliding door 6’0” x 6’8” with lock Windows: Two vinyl sliding windows 5′ x 3′, double-glazed Flooring: Luxury vinyl flooring Interior Walls/Ceiling: Shiplap-style pine with drywall framing Insulation: Spray foam walls/ceiling, insulated floor system HVAC: 9,000 BTU ductless mini-split heat pump Electrical: Internal code-compliant outlets & switches, external hookup, recessed LED ceiling lights Plumbing: PEX and PVC drainage, propane tankless water heater, black/greywater system Optional Rooftop Deck: Maintenance-free composite decking, treated framing, aluminum railing, steel spiral staircase Compliance: Built to IBC/IRC standards, adjustable for local codes






